The Crestwood

AvitalHomesKC Small Logo

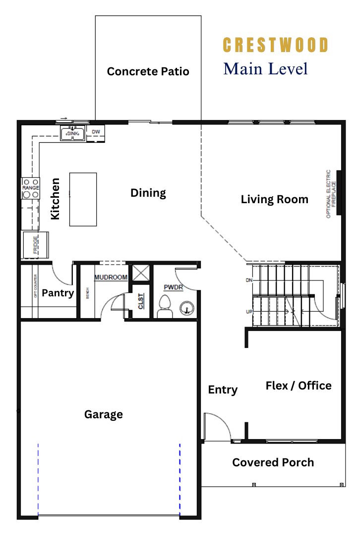
Welcome to “Crestwood,” where comfort and style converge in this spacious 4-bedroom, 3.5-bath 2-story floorplan. Immerse yourself in the spacious primary bedroom suite, adorned with His and Hers walk-in closets for the ultimate in luxury. With a versatile Flex / Office space, a welcoming Entry Foyer opening to the Living, Dining, and Kitchen areas, “Crestwood” is designed to inspire a sense of home that goes beyond the ordinary, offering a perfect blend of functionality and charm for a life well-lived.

Crestwood Floor Plans

Crestwood Virtual Walkthrough

Available Homes 13 results

505 SW Newport Dr, Blue Springs, MO 64014, USA

$519,950

Welcome to “Crestwood,” where comfort and style converge in this...

Property bedrooms 4 beds
Property bathrooms 3.5 baths
Property area 2292 sq ft
Property year_remodeled 154
$519,950

18425 W 195th St, Spring Hill, KS 66083, USA

Welcome to “Crestwood,” where comfort and style converge in this...

Property bedrooms 3 beds
Property bathrooms 3.5 baths
Property area 2333 sq ft
Property year_remodeled 15

18360 W 195th St, Spring Hill, KS 66083, USA

Welcome to “Crestwood,” where comfort and style converge in this...

Property bedrooms 3 beds
Property bathrooms 3.5 baths
Property area 2333 sq ft
Property year_remodeled 2

18637 W 193rd Street, Spring Hill Kansas 66083

$609,950

Welcome to “Crestwood,” where comfort and style converge in this...

Property bedrooms 4 beds
Property bathrooms 3.5 baths
Property area 2333 sq ft
Property year_remodeled 6
$609,950

18681 W 193rd Street Spring Hill Kansas 66083

$614,950

Welcome to “Crestwood,” where comfort and style converge in this...

Property bedrooms 4 beds
Property bathrooms 3.5 baths
Property area 2333 sq ft
Property year_remodeled 4
$614,950

13305 W 179th Street Overland Park KS 66013

$608,950

Welcome to “Crestwood,” where comfort and style converge in this...

Property bedrooms 4 beds
Property bathrooms 3.5 baths
Property area 2333 sq ft
Property year_remodeled 79
$608,950

13458 W 179th Terr Overland Park, KS, USA

$599,950

Welcome to “Crestwood,” where comfort and style converge in this...

Property bedrooms 4 beds
Property bathrooms 3.5 baths
Property area 2333 sq ft
Property year_remodeled 64
$599,950

16716 S Twilight Ln, Olathe, KS 66062, USA

$609,950

Welcome to “Crestwood,” where comfort and style converge in this...

Property bedrooms 4 beds
Property bathrooms 3.5 baths
Property area 2333 sq ft
Property year_remodeled 36
$609,950

1917 SW Hightown Dr, Lee's Summit, MO 64082, USA

$525,000

Welcome to “Crestwood,” where comfort and style converge in this...

Property bedrooms 4 beds
Property bathrooms 3.5 baths
Property area 2292 sq ft
Property year_remodeled 124
$525,000

708 Glenn Cir Raymore MO 64083

$499,950

Welcome to “Crestwood,” where comfort and style converge in this...

Property bedrooms 3 beds
Property bathrooms 3.5 baths
Property area 2292 sq ft
Property year_remodeled 137
$499,950

838 Reed Drive, Raymore Missouri 64083

$559,950

Welcome to “Crestwood,” where comfort and style converge in this...

Property bedrooms 4 beds
Property bathrooms 3.5 baths
Property area 2292 sq ft
Property year_remodeled 25
$559,950

13408 W 178th Street Overland Park KS 66013

$575,000

Welcome to “Crestwood,” where comfort and style converge in this...

Property bedrooms 4 beds
Property bathrooms 3.5 baths
Property area 2333 sq ft
Property year_remodeled 56
$575,000

1933 SW Merryman Drive Lee's Summit MO 64082

$519,950

Welcome to “Crestwood,” where comfort and style converge in this...

Property bedrooms 4 beds
Property bathrooms 3.5 baths
Property area 2292 sq ft
Property year_remodeled 135 MN
$519,950

Available Crestwood Floorplans

Elevation and floorplan illustrations are not to scale and for illustration purposes only. Optional features may be shown. Specifications, standards, features and details are subject to change without notice. Exterior material specifications and placement may vary per community. ©2024
Avital Homes, LLC. All Rights Reserved.

Reset password

Enter your email address and we will send you a link to change your password.

About

Find Your Home

Contact

Receive up-to $20,000 in Builder & Lender combined credits to use toward Buyer choice — ex. closing costs, approved upgrades, rate buy-down, or combination thereof. On full price non-contingent offers accepted by 12/31/2025. Up to $1,000 credit is a Lender Credit, and up to $19,000 as a Builder Credit to be reflected on the settlement statement. Limited time offer available on specific and limited inventory homes. Mortgage financing must be through Jim Alderman Team with Community America Credit Union (CACU). ALL LOANS ARE SUBJECT TO CREDIT APPROVAL and QUALIFICATION REQUIREMENTS. Must close within 30-days of accepted offer. Builder may reflect the promo on select inventory home(s) as price improvement via the price summary, in lieu of other presented options. Promo is subject to change without notice and expires on 12/31/2025. Can not be combined with any other offers.

*Mortgage financing must be obtained through the Jim Alderman Team at Community America Credit Union (CACU). All loans are subject to credit approval and program qualification requirements. Offer is available to well-qualified buyers who meet all program and loan eligibility criteria, including minimum loan amount requirements. Rates are subject to change.  Contact the Jim Alderman Team / CACU for full details. This promotion cannot be combined with any other offers, except for Builder rate-buydown offer (*if available), and is subject to change or withdrawal without notice. Other restrictions may apply. Must close on or before 9/30/25 to qualify. 

Home

browse

Contact

top

menu